TÍNH NĂNG
CỘT CHẮN XE TỰ ĐỘNG STOPPY B
Dòng sản phẩm cột chắn xe sử dụng động cơ điện nhằm đảm bảo an ninh và an toàn cho các khu vực hạn chế phương tiện giao thông với chiều cao cột từ 500mm đến 700mm.

♦ Cột chắn xe STOPPY B với chất lượng cao và giá thành hợp lý là kết quả của quá trình nghiên cứu thị trường tỉ mỉ từ công nghệ lắp ráp tới các chi tiết thiết kế để cho ra đời sản phẩm đơn giản mà vẫn đáp ứng đầy đủ yêu cầu của khách hàng.
♦ Cột chắn xe STOPPY B có 2 model cho khách hàng lựa chọn:
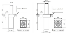
► STOPPY B Ø115-500 có đường kính Ø115 mm và chiều cao cột 500 mm không có đèn báo phía trên cột nhưng có trang bị dải phản quang.
► STOPPY B Ø200-700, có đường kính Ø200 mm và chiều cao cột 700mm có đèn báo phía trên cột và trang bị dải phản quang.

THÔNG SỐ KỸ THUẬT